Station Parade, Cockfosters, London, EN4

For Sale - Leasehold - £300,000

Photo 2

Commercial, Leasehold

Home & Away Estates are pleased to offer this well established Greek Bakery/Patisserie located on Cockfosters Road, a vibrant urban area known for its restaurants and local retailers. The property is a short walk away from Trent Park and Hadley Woods. Cockfosters Underground Station (Piccadilly Line) is also a two minute walk.
DESCRIPTION:
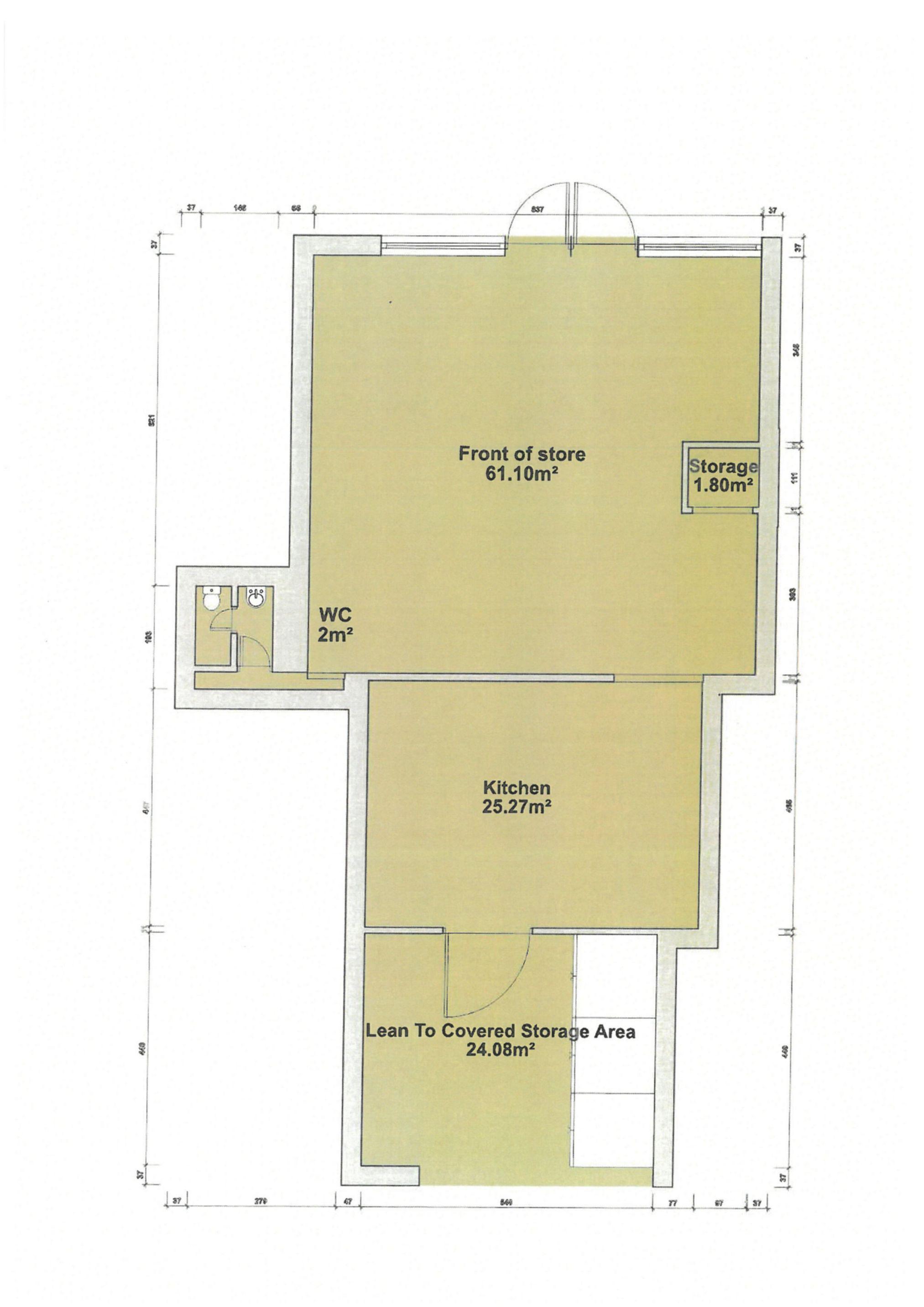
E class modern commercial unit that has successfully been trading as a Greek Bakery/Café for over 15 years and has an already built loyal customer base and established business supplying many other Greek Bakeries. The property totals 1,640 sq. ft. and has been carefully looked after and updated by the owners and includes a café area with tables, the service area fully equipped with display fridges and modern counters and inner kitchen, a further fully fitted kitchen work room with commercial ovens, washing facilities, a walk-in fridge and freezer. The property also has a separate covered storage area to the rear of the property.

Rent: £39,200 per annum
Premium: £350,000
Assignment of a 25-year lease with circa 10 years remaining
Fully fitted Bakery and Cafe
Prime location
Existing customer base
Rates: Interested parties should make their own enquiries.
Use: E class
Please note that we charge a £750 +VAT fee for the processing of referencing, administration and laundering.
TERMS:
Assignment of a 25-year lease
VAT:
It is our understanding that there is no VAT
LEGAL COSTS:
The ingoing tenant to cover the landlords' legal fees
VIEWING:
Viewings and details strictly via Home & Away Estates. Owners request No walk-ins please.

Disclaimer:
Whilst we use all reasonable efforts to ensure that the information published on this website is accurate depiction of properties in photographs, Floor Plans and descriptions, however the information is only intended as a guide and purchaser's are advised to make a personal inspection.


Photo 3 Photo 4 Photo 5 Photo 13 Photo 9 Photo 19 Photo 25 Photo 12 Photo 11 Photo 1 Photo 2 Photo 7 Photo 24 Photo 19
Branch Address
13 Station Parade<br>Cockfosters Road<br>London<br>EN4 0DL
Contact
A: Home and Away
T: 0208 371 2999
E: info@haae.co.uk
Reference: HOME_003799
IMPORTANT NOTICE
Descriptions of the property are subjective and are used in good faith as an opinion and NOT as a statement of fact. Please make further specific enquires to ensure that our descriptions are likely to match any expectations you may have of the property. We have not tested any services, systems or appliances at this property. We strongly recommend that all the information we provide be verified by you on inspection, and by your Surveyor and Conveyancer.