Greenacres, Glyn Avenue, New Barnet, EN4

For Sale - Share of Freehold - Reduced for Quick Sale £249,950

Photo 9

1 Bedroom, Maisonette, Share of Freehold

Home & Away Estates are pleased to offer a well presented share of freehold ground floor maisonette offered chain free. This property offers a separate fully fitted kitchen leading to a generous living room with a window to the rear facing the Victoria recreation park, a modern bathroom as well as a double bedroom and communal off street parking for cars. Located in a very quiet area close to local amenities and within moments from New Barnet train Station which makes it a very good first-time-buyer property or investment opportunity.


Photo 1 Bathroom Bedroom Photo 11 Photo 13 Lounge Lounge to Kitchen Kitchen Kitchen Photo 14
Entrance hall
 Leading to:

  
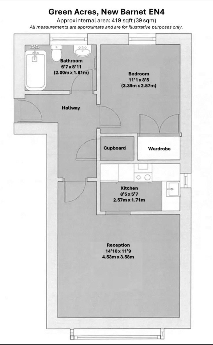
Bathroom
 6'7" x 5'11" (2.01m x 1.80m)
 
  
Bedroom
 11'1" x 8'5" (3.38m x 2.57m)
 
  
Kitchen
 8'5" x 5'7" (2.57m x 1.70m)
 
  
Reception
 14'10" x 11'9" (4.52m x 3.58m)
 
  
 
  
  
Branch Address
13 Station Parade<br>Cockfosters Road<br>London<br>EN4 0DL
Contact
A: Home and Away
T: 0208 371 2999
E: info@haae.co.uk
Reference: HOME_003812
IMPORTANT NOTICE
Descriptions of the property are subjective and are used in good faith as an opinion and NOT as a statement of fact. Please make further specific enquires to ensure that our descriptions are likely to match any expectations you may have of the property. We have not tested any services, systems or appliances at this property. We strongly recommend that all the information we provide be verified by you on inspection, and by your Surveyor and Conveyancer.