For Sale Glyn Avenue, New Barnet, EN4 Reduced for Quick Sale £249,950
Ground floor
One double bedroom
Lounge / Separate kitchen
Allocated parking space
Offered CHAIN FREE
Lease in excess of 900 years
EPC: D
Tax Band: C
EPC Rating D
Council Tax Band C, Barnet
Share of Freehold
Home & Away Estates are pleased to offer a well presented share of freehold ground floor maisonette offered chain free. This property offers a separate fully fitted kitchen leading to a generous living room with a window to the rear facing the Victoria recreation park, a modern bathroom as well as a double bedroom and communal off street parking for cars. Located in a very quiet area close to local amenities and within moments from New Barnet train Station which makes it a very good first-time-buyer property or investment opportunity.
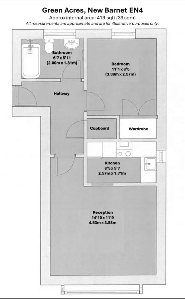
| Entrance hall | Leading to: | |||
| Bathroom | 6'7" x 5'11" (2.01m x 1.80m) | |||
| Bedroom | 11'1" x 8'5" (3.38m x 2.57m) | |||
| Kitchen | 8'5" x 5'7" (2.57m x 1.70m) | |||
| Reception | 14'10" x 11'9" (4.52m x 3.58m) | |||
| | |
Floor Plan
IMPORTANT NOTICE
Descriptions of the property are subjective and are used in good faith as an opinion and NOT as a statement of fact. Please make further specific enquires to ensure that our descriptions are likely to match any expectations you may have of the property. We have not tested any services, systems or appliances at this property. We strongly recommend that all the information we provide be verified by you on inspection, and by your Surveyor and Conveyancer.






















